Назначение
Прибор может быть установлен как самостоятельный котельный агрегат, так и работать в связке с другими котлами в модульных установках. Твердотопливный котел серии КВ-3,7 предназначен для центрального отопления и горячего водоснабжения жилищных, общественных и производственных помещений.
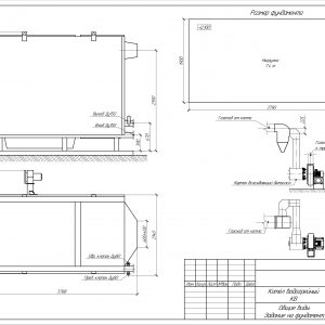
Устройство и принцип работы
Устройство твердотопливного котельного агрегата серии КВ-3,7 состоит из топливной и конвективной части. Принцип работы заключается в слоевом сжигании топливной массы. Таким образом, процесс горения происходит не по всей поверхности топливной камеры, а в определенном слое.
Топливо подается в топку, начинается процесс горения, в результате которого выделяется тепло и нагревается система трубопровода. Полученная горячая вода может использоваться как для отопления помещений, так и для обеспечения нужд горячего водоснабжения.
Преимущества
- Высокий процент КПД (более 80%);
- Длительность эксплуатации;
- Возможность автоматизации процессов;
- Эффективный расход топлива за счет слоевого сжигания;
- Нет необходимости в предварительной водоподготовке;
- Вместительность топливной камеры.
Установка и комплектация
Котел серии КВ-3,7 устанавливается согласно схеме отопления. Установкой котельного оборудования могут заниматься только специалисты, обладающие необходимой квалификацией. При установке важно соблюдать нормы СНиП и руководствоваться «Правилами устройства и безопасной эксплуатации паровых и водогрейных котлов».
Котел серии КВ-3,7 поставляется в заводской сборке. В комплекте имеется все необходимое для установки котла, в том числе запорная арматура и контрольно-измерительные приборы.


































